AR-4H21-0,9-1/8-GSP
Клапан соленоидный нормально закрытый прямого действия с поршнем на высокое давление до 30 МПа AR-4H21 (AR-HP350) предназначен для управления потоком рабочей среды в трубопроводе
Особенности:
Модификации:
Версия: 2024-09-30-КВА
Особенности:
- Работа при высоком давлении до 30 МПа
- Срабатывание при нулевом давлении
- Компактный размер
Принцип действия и область применения:Нормально закрытый соленоидный клапан – это магнитный клапан, в котором закрытое положение сохраняется, если управляющее напряжение на его индукционную катушку не подается. При подаче напряжения на катушку нормально закрытый клапан открывается и пропускает через себя поток рабочей среды. При отключении управляющего напряжения этот клапан автоматически закрывается и перекрывает поток рабочей среды в трубопроводе. При обрыве провода управляющего напряжения клапан будет закрыт.
В большинстве случаев подходит для эксплуатации в системах водоснабжения, теплоснабжения, вентиляции и пневмоуправления. Особенно актуально применение данного типа клапана, когда клапан должен быть закрыт большую часть времени либо когда он обязательно должен быть закрыт при отключении электропитания системы.Технические характеристики:
В большинстве случаев подходит для эксплуатации в системах водоснабжения, теплоснабжения, вентиляции и пневмоуправления. Особенно актуально применение данного типа клапана, когда клапан должен быть закрыт большую часть времени либо когда он обязательно должен быть закрыт при отключении электропитания системы.Технические характеристики:
| Параметр
| Значение
|
| Рабочая среда | Вода, горячая вода, воздух, инертные газы, масла* |
| Материал | Корпуса: нержавеющая сталь
Уплотнения: PTFE |
| Температура рабочей среды | −10…+120°С
|
| Рабочее давление | 0…30 МПа |
| Диаметр условного прохода | 0,9 мм |
| Присоединение | Резьбовое G⅛" |
| Питание | ~220 В, ~110 В, ~24 В
=110 В, =24 В, =12 В |
* Max рабочее давление для масел – 25 МПа
| Катушка | Мощность
| AC
| DC
| ||||
| ~220 В
| ~110 В | ~24 В | =110 В
| =24 В | =12 В | ||
| SB257
IP65 | 28 ВА
| V
| V | V |
|
|
|
| 18 Вт
|
|
|
| V
| V | V | |
| ASE11H*
IP65 | 4,5 ВА | V
|
|
|
|
|
|
| 8 Вт |
|
|
|
| V | V | |
| ASEx543**
IP65 | 23 ВА
| V | V | V |
|
|
|
| 13 Вт
|
|
|
|
| V | V | |
* Использование энергосберегающей катушки ASE11H позволяет снизить температуру нагрева катушки и тем самым продлить срок ее службы в несколько раз
** Взрывозащищеннная катушка ASEx543 обеспечивает работу клапана только до 10 МПа | Модель | Ду, мм | Kv, м³/ч | Присоединение | Pmin, МПа | Pmax, МПа | Вес, г
|
| AR-4H21-0,9-1/4-GSP | 0,9
|
1,8
| G⅛" | 0,0 | 30,0 | 477
|
| AR-4H21-0,9-1/2-GSP |
Расшифровка обозначения на примере клапана AR-4H21-0,9-1/2-XYZ:
AR-4H21 – модель клапана.
0,9 – диаметр условного прохода в мм.
1/2 – размер резьбы в дюймах.
X – присоединение: G – трубная резьба.
Y – материал корпуса: S – нержавеющая сталь.
Z – материал уплотнения: P − PTFE.
AR-4H21 – модель клапана.
0,9 – диаметр условного прохода в мм.
1/2 – размер резьбы в дюймах.
X – присоединение: G – трубная резьба.
Y – материал корпуса: S – нержавеющая сталь.
Z – материал уплотнения: P − PTFE.
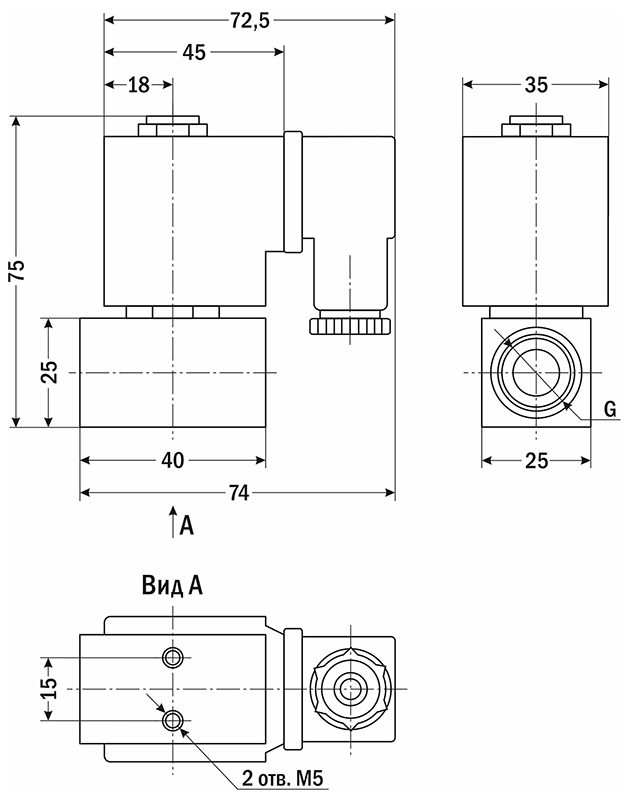
| Габаритные размеры
|
G=¼", ½" |
| Разрез нижней части клапана
|
![]() |
| Документ | Дата обновления |
| Паспорт на AR-HP350 | 07.03.2025 |
![1440x900_286943_[www.ArtFile.ru].jpg 1440x900_286943_[www.ArtFile.ru].jpg](/upload_ex/medialibrary/6f3/6f3a5067b32295dd9f437f3b1c8467ba.jpg)
